We are delighted to offer for sale this first floor maisonette situated within close proximity of Essex University, local shops, schools and regular bus service to Colchester’s city centre. Viewing is recommended.
We are delighted to offer for sale this first floor maisonette situated within close proximity of Essex University, local shops, schools and regular bus service to Colchester's city centre. Viewing is recommended.
Entrance door to:
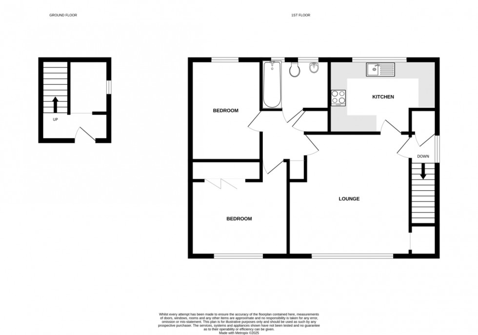
ENTRANCE HALL Built-in storage cupboard, UPVC double glazed window to side, stairs to first floor.
LOUNGE 15' 2" x 14' 5" (4.62m x 4.39m) UPVC double glazed window to front, built-in storage cupboard, feature brick fireplace, door to kitchen and inner hallway.
KITCHEN 12' 9" x 8' 8" (3.89m x 2.64m) UPVC double glazed window to rear, base and eye level units, stainless steel sink set into work surfacing, integrated stainless steel electric oven, electric hob with overhead extractor, space for washing machine, tumble dryer and fridge/freezer, ceramic tiled floor.
INNER HALLWAY Ceramic tiled floor, access to loft, cupboard housing hot water cylinder, doors to:
BEDROOM ONE 12' 8" x 11' 9" (3.86m x 3.58m) UPVC double glazed window to front, range of fitted wardrobes.
BEDROOM TWO 11' 4" x 8' 8" (3.45m x 2.64m) UPVC double glazed window to rear.
BATHROOM Two UPVC double glazed obscure windows to rear, bath, WC and wash basin, inset spotlighting.
OUTSIDE The rear garden is laid to lawn and enclosed by panel fencing.
ADDITIONAL INFORMATION Council tax band : A.
Local authority : Colchester City Council.
Energy rating : E.
Our seller advises us of the following:-
Lease : 104 years remain.
Service charge and ground rent : approximately £45.00 per month.
Leasehold properties : ground rents and service/maintenance charges may fluctuate. Precise figures and lease duration must be obtained from the sellers legal representative.
DISCLAIMER: Consumer Protection from Unfair Trading Regulations 2008 and the Business Protection from Misleading Marketing Regulations 2008: Every effort has been made to ensure that consumers and or businesses are treated fairly and provided with accurate material information as required by law. It must be noted however that the agent has not tested any apparatus, equipment, fixture, fittings or services and does not verify they are in working order, fit for their purpose, or within the ownership of the seller or landlord, therefore the buyer or tenant must assume the information given is incorrect. Neither has the agent checked the legal documentation to verify the legal status of the property. A buyer or tenant must assume information is incorrect until it has been verified by their own solicitors or other advisers. Nothing concerning the type of construction, condition of the structure or its surroundings is to be implied from any image of the property.